• 酷建房
  • 酷建房 > 热点资讯 > 建房知识> 农村别墅设计图之【结构施工图】样板图

    农村别墅设计图之【结构施工图】样板图

    编辑时间:2019-04-18浏览次数:218

  • 资讯详情
  • 分享:
  • 结构施工图纸概述
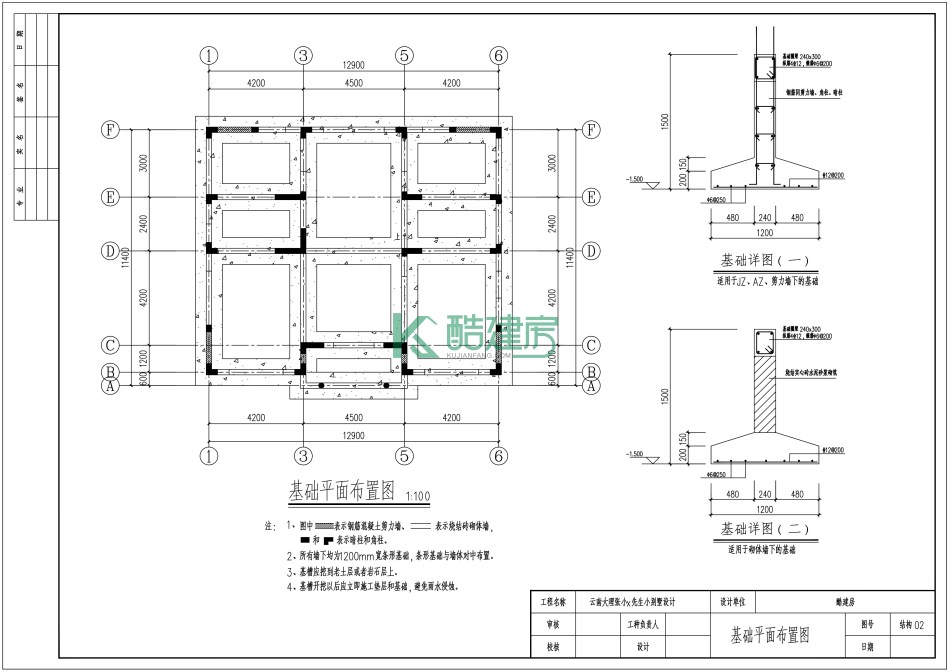
    结构施工图是关于承重构件(梁板柱基础)的布置,使用的材料,形状,大小,及内部构造和配筋情况的工程图样,是承重构件以及其他受力构件施工的依据。是主导建筑经济性与安全性的设计。
    结构施工图纸目录
    结构设计总说明,基础平面布置图、基础配筋大样图,柱子结构平法配筋图、梁结构平法配筋图,板结构平法配筋图,楼梯结构配筋图,节点大样图。

    结构施工图样板图


    其他专业样板图,请点击下面链接查看:
    农村别墅设计图之【建筑施工图】样板图
    农村别墅设计图之【给排水施工图】样板图
    农村别墅设计图之【电气施工图】样板图
    农村别墅设计图之【外观立面效果图】样板图

  • 猜你喜欢
  • 定制咨询
  • 图纸下载
  • 电话咨询

    13737070710

    别墅设计咨询电话

  • 关闭

    kujianfang

    关闭

    kujianfang

    温馨提示

    将本条资讯分享截图给客服,有消费券奖励!