• 酷建房
  • 酷建房 > 三层别墅设计图 > 三层中式别墅效果图新款经济型,占地108平方9×12米带露台农村独栋小别墅设计图
  • 别墅说明 图纸展示
  • 分享:
  • 图纸说明
  • 这是一个简单实用的三层小别墅设计图,看起来宏伟端庄,但是造价不高,属于经济型别墅。大门窗设计,给这栋自建房增添了富贵的气息;露台设计,为别墅添加了层次感,内部布局完善却又不显得拥挤,房间数量较多,实用性较强,是一款性价比超高的设计方案。
  • 图纸内容
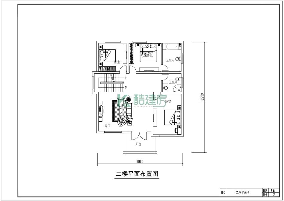
  • 建筑图:设计说明、门窗表、一层平面布置设计图、二层平面布置设计图、三层平面布置设计图、顶楼平面布置设计图、前视图、右视图、后视图、左视图、剖面图等;
    结构图:基础平面布置设计图、地梁层结构平面设计图、基础顶柱配筋图、二楼板筋平面布置设计图、二层梁结构平面设计图、三楼板筋平面布置设计图、三层梁结构平面设计图、四楼板筋平面布置设计图、四层梁结构平面设计图等;
    电气:一楼平面布置设计图、二楼平面布置设计图、三楼平面布置设计图等;
    给排水:一楼平面布置设计图、二楼平面布置设计图、三楼平面布置设计图;
  • 功能布局
  • 一层:厨房,餐厅,卧室,楼梯,卫生间,客厅,主卧室;
    二层:2卧室,主卧室,2卫生间,楼梯,客厅;
    三层:2卧室,主卧室,2卫生间,楼梯,露台;

    顶楼:

    建房乃百年大计,切不可随意将就。看中喜欢的效果图,内部户型布局均可按您的地形尺寸及个性需求调整定制设计。请添加酷建房顾问微信号[kujianfang]咨询。

  • 别墅说明 图纸展示
  • 别墅效果图
  • 三层中式别墅效果图新款经济型效果图
  • 别墅施工图
  • 三层中式别墅效果图新款经济型施工图 三层中式别墅效果图新款经济型施工图 三层中式别墅效果图新款经济型施工图 三层中式别墅效果图新款经济型施工图 三层中式别墅效果图新款经济型施工图 三层中式别墅效果图新款经济型施工图 三层中式别墅效果图新款经济型施工图 三层中式别墅效果图新款经济型施工图
  • 猜你喜欢
  • 定制咨询
  • 图纸下载
  • 电话咨询

    13737070710

    别墅设计咨询电话

  • 关闭

    kujianfang

    关闭

    kujianfang

    温馨提示

    将本条资讯分享截图给客服,有消费券奖励!