• 酷建房
  • 酷建房 > 三层别墅设计图 > 三层中式别墅效果图经济型小户型,占地120平方8×15米带露台旋转楼梯花园农村独栋自建房设计图
  • 别墅说明 图纸展示
  • 分享:
  • 图纸说明
  • 设计功能:
    一层前后分区明确,通高中庭联两厅。
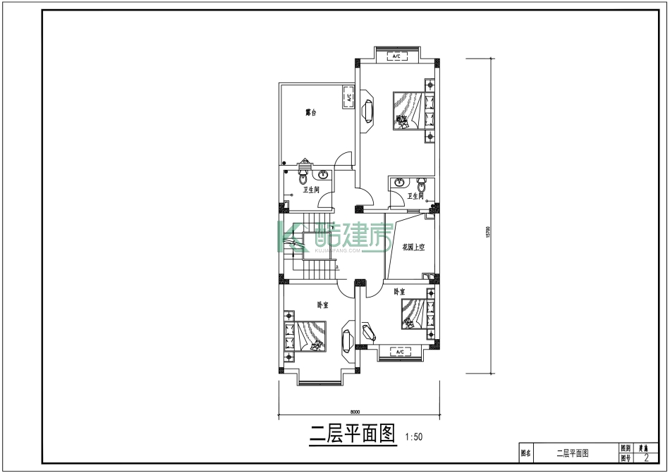
    二层卧室各自独立,私密性强。卧室南向采光,通风性高。
    三层大露台,增加活动、生活空间
    建筑外观:
    二层挑廊,高层退台,建筑凹凸有致。用倾斜大三角来覆盖,使落差得以缓和,增加流线美。
  • 图纸内容
  • 建筑图:设计说明、门窗表及门窗大样、首层平面设计图、二层平面设计图、三层平面设计图、屋顶平面设计图、正立面图、背立面图、左立面图、右立面图、A-A剖面图、B-B剖面图、节点大样图、节点大样图等;
  • 功能布局
  • 一层:卫生间,客厅,楼梯,花园,餐厅,厨房;
    二层:露台,3卧室,2卫生间,楼梯,花园上空;
    三层:主卧室,衣帽间,卫生间,楼梯,可动天窗,露台.
  • 别墅说明 图纸展示
  • 别墅效果图
  • 三层中式别墅效果图经济型小户型效果图
  • 别墅施工图
  • 三层中式别墅效果图经济型小户型施工图 三层中式别墅效果图经济型小户型施工图 三层中式别墅效果图经济型小户型施工图 三层中式别墅效果图经济型小户型施工图 三层中式别墅效果图经济型小户型施工图 三层中式别墅效果图经济型小户型施工图 三层中式别墅效果图经济型小户型施工图 三层中式别墅效果图经济型小户型施工图
  • 猜你喜欢
  • 定制咨询
  • 图纸下载
  • 电话咨询

    13737070710

    别墅设计咨询电话

  • 关闭

    kujianfang

    关闭

    kujianfang

    温馨提示

    将本条资讯分享截图给客服,有消费券奖励!