• 酷建房
  • 酷建房 > 三层别墅设计图 > 二层田园别墅效果图实用舒适,占地169平方13×13米带露台阳台农村独栋自建房设计图
  • 别墅说明 图纸展示
  • 分享:
  • 图纸说明
  • 设计功能:
    底层架空,手法别致。
    一层架空入户,设置玄关、大露台,空间过渡有条不紊,舒适感强。动静分区合理,流线清晰。
    二层大家庭室充当家庭的联系交流空间,丰富室内格局。
    建筑外观:
    外部采用木构构建和白色墙面,尽显田园风的休闲舒适,与环境的融合度高。
  • 图纸内容
  • 建筑图:设计说明、建筑构造装修做法、架空层平面设计图、一层平面设计图、二层平面设计图、屋顶层平面设计图、正立面图、侧立面图、1-1剖面图等;
    结构图:架空层结构布置图、一层结构布置图、屋面层结构布置图、基础平面设计图、条基、柱基、JQL断面配筋图、梯段板、构造柱、外伸梁、墙柱连接配筋大样图等;
    给排水图:一层平面设计图例及材料表、二层平面设计图等;
    电气图:一层平面设计图例及材料表、二层平面设计图等;
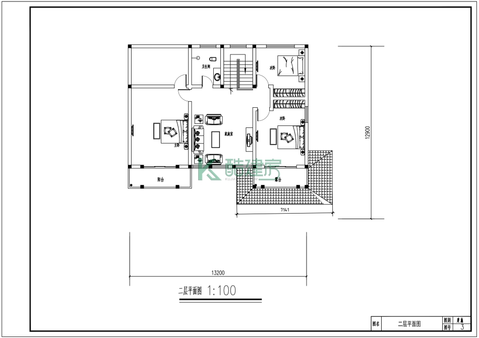
  • 功能布局
  • 架空层:楼梯;
    一层:烤火房,厨房,2卫生间,杂物间,楼梯,2次卧,餐厅,客厅,堂屋,2露台;
    二层:卫生间,楼梯,2次卧,主卧,家庭室,阳台,露台.
  • 别墅说明 图纸展示
  • 别墅效果图
  • 二层田园别墅效果图实用舒适效果图
  • 别墅施工图
  • 二层田园别墅效果图实用舒适施工图 二层田园别墅效果图实用舒适施工图 二层田园别墅效果图实用舒适施工图 二层田园别墅效果图实用舒适施工图 二层田园别墅效果图实用舒适施工图 二层田园别墅效果图实用舒适施工图
  • 猜你喜欢
  • 定制咨询
  • 图纸下载
  • 电话咨询

    13737070710

    别墅设计咨询电话

  • 关闭

    kujianfang

    关闭

    kujianfang

    温馨提示

    将本条资讯分享截图给客服,有消费券奖励!